Contact Us联系我们

大宸设计·清远第三人民医院儿童康复中心
2025-08-12

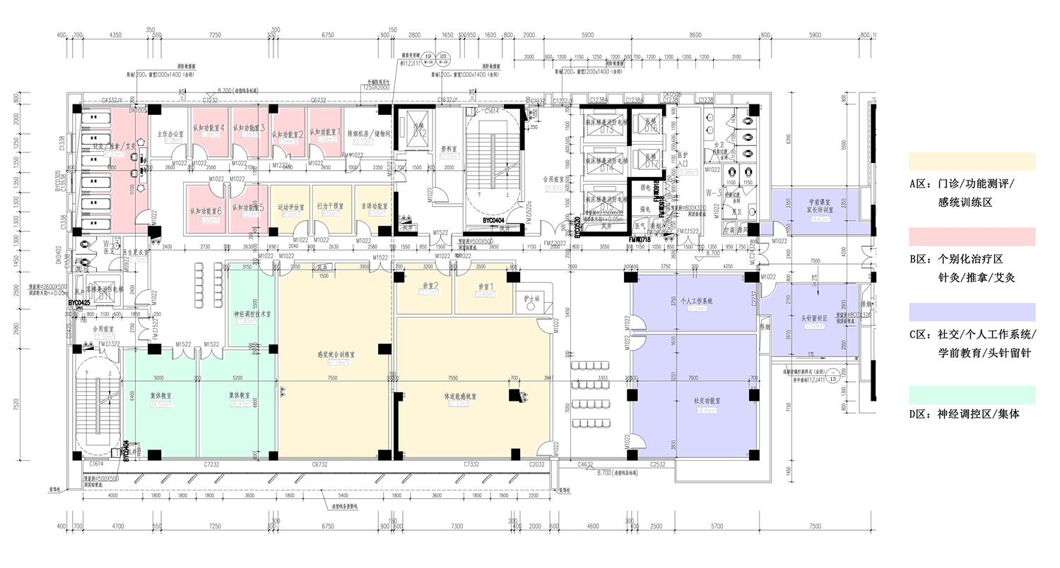
在医疗空间的设计领域,儿童康复中心,尤其是面向孤独症谱系及发展障碍儿童的空间,其设计远非简单的功能排布。它是一场对感官体验、情绪引导与疗愈效率的深度探索。项目基于国际前沿的感官友好设计理念,将冰冷的医疗场所,转化为一处懂得“呼吸”与“回应”的治愈绿洲。

我们深知,特殊儿童对环境刺激异常敏感。过度的光线、噪音、混乱的色彩或生硬的边界,都可能成为康复的阻碍。因此,设计的核心在于“调谐”与“赋能”: 摒弃高饱和与强对比色系,有效降低视觉负荷。近人尺度的空间体量,均匀柔和的空间照明,营造安全“锚点”。

△感觉统合训练室

设计不止于舒适,更在于高效驱动康复进程。每一处空间都经过科学规划与创新设计:感觉统合训练室以明快的色彩分区与软质器材,让训练变成游戏;社交功能室运用环形布局和生活化场景促进互动,鼓励孩子们打开心扉;认知功能室借助柔和色调与可触式教具,让学习成为探索的乐趣。

△体适能感统训练室

设计以营造轻松、友好的就诊环境为核心,兼顾儿童心理感受和行为习惯。背景墙植入大面积的卡通风墙绘,色彩柔和,充满童趣,同时作为科室清晰指引与文化输出,并且缓解儿童可能存在的紧张和焦虑情绪。

△社交功能室

空间设计中,功能与童趣共生,专业与温度并存。分诊台与护士站以流线型台面搭配卡通背景墙,将医疗功能隐于亲和力之后。走廊与诊室墙面采用柔和的卡通彩绘,以清远妇幼保健院院徽的“健康绿”为基调,搭配浅色防滑地板,营造如家般的温馨感。

△个人工作系统

△认知功能室

暖白色墙面与卡通彩绘形成视觉呼应,嵌入式顶灯与间接光设计让走廊不再是单调的过渡,而是充满安全感的“童话通道”。医疗空间至此不仅是治疗的场所,更是孩子们迈向健康的起点。

△针灸/推拿/艾灸室

△电梯厅

从感觉统合训练室里的趣味教具,到认知功能室中的互动装置,再到体适能感统室里的活力设施,设计把“治疗”藏进“游戏”里,让孩子们在奔跑、触摸、探索中悄然进步。

项目名称:清远第三人民医院儿童康复中心

项目类型:医疗建筑

项目地点:广东省清远市

设计方:广东大宸建筑设计有限公司

设计成员:彭咏彤 张樱 梁宇浩

返回 上一条大宸设计·新会智造产业园项目首批厂房顺利封顶 下一条子兮如斯文化行馆
返回顶部